Používáme cookies k optimalizaci našich webových stránek a našich služeb. Další informace o cookies najdete zde.

Nastavení


Byt 2+1 s možností přestavby na 3+kk

Byt 2+1 s možností přestavby na 3+kk

Popis nemovitosti

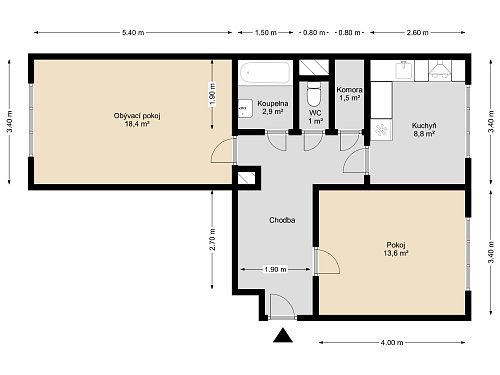
Nabízíme k prodeji byt o dispozici 2+1 ve velmi žádané lokalitě v Plzni – Východní Předměstí.
Byt o podlahové ploše 56,7 m² se nachází v 1. patře, tedy ve druhém nadzemním podlaží v bytovém domě v Částkově ulici. Disponuje obývacím pokojem, ložnicí, kuchyní, koupelnou, která je po rekonstrukci s prostorným sprchovým koutem a samostatnou toaletou. Drobnou rekonstrukcí lze byt změnit na dispozici 3+kk. Součástí je také technická místnost pro pračku i sušičku a sklep umístěný v suterénu domu o ploše 3,36 m². Byt se nachází ve velmi dobře udržovaném cihlovém domě z roku 1960, na kterém v průběhu let proběhla rekonstrukce a zateplení fasády, díky tomu je dům energeticky nenáročný, což dokazuje PENB B. Náklady na provoz jsou velmi nízké a fond oprav je pouhých 481 Kč.
V nejbližším okolí najdete potraviny, nákupní centrum Galerie Slovany s množstvím obchodů a služeb včetně fitness centra. V blízkosti je poliklinika, školy, školky, zastávka tramvaje i MHD.

V případě zájmu o bližší informace či domluvení termínu prohlídky nás neváhejte kontaktovat.

Petra Palušná

 

Jsem Petra Palušná, realitní makléřka s vášní pro pomoc lidem najít jejich vysněný domov. Stejně tak s vášní pro prodej nemovitostí za nejvyšší možné ceny. Proto je ovšem klíčové správné nastavení prodejní ceny. Správně zvolený marketing s cílením na konkrétní zájemce. V neposlední řadě komunikace s klienty, prolidskost a dokonalé naslouchání jejich potřeb. Má práce není jen o prodeji a nákupech nemovitostí. Je to o spojování lidí s místy, která budou sloužit jako pozadí pro jejich životní příběhy.

Prodej či koupě nemovitosti nemusí mít vždy hladký průběh a v dnešním světě plném nástrah kdejakých "flipařů" (investorů do nemovitostí a překupníků podílů) je potřeba být obzvláště opatrní. 

V realitním světě se pohybuji již řadu let a každý den mě naplňuje nová výzva a příležitost udělat něco významného pro někoho jiného. Především předejít nenávratným problémům při prodeji nemovitosti. 

Moje práce je mým koníčkem a vášní. Přistupuji k ní s otevřeným srdcem a myslí, vždy s cílem najít to nejlepší řešení pro každého klienta. Věřím, že klíčem k úspěchu je naslouchání a porozumění potřebám a přáním lidí, se kterými pracuji. To mi umožňuje nabídnout servis pro každého klienta.

Ve světě realit se neustále učím a snažím se být o krok napřed, abych poskytovala aktuální a relevantní informace, které pomohou mému klientovi udělat to nejlepší rozhodnutí. Mým cílem je nejen uspokojit, ale předčit očekávání a zajistit, že celý proces bude co nejpříjemnější a nejhladší.

Své poslání vidím v tom, být průvodcem na cestě za prodejem nemovitosti stejně tak za splněním snů o bydlení. Pokud hledáte domov, nebo prostor, kde bude Váš život kvést, jsem tu pro Vás, abych pomohla najít místo, které budete nazývat domovem. A pokud chcete vaši nemovitost prodat rychle, kvalitně a hlavně bez starostí tak se na mne neváhejte obrátit.


Petra Palušná

Kontaktní formulář

Stáhnout PDF